Dans le 20ᵉ arrondissement, l’ancienne gare de la rue d’Avron s’apprête à connaître une nouvelle vie. Un vaste projet, nommé « Passerelle A » vise sa rénovation complète et la construction d’un bâtiment neuf et d’une extension. À la clé, plus de 900 m², aménagés en lieux d’exposition et de restauration, avec un accès aux voies de la Petite Ceinture.
Si l’initiative est ambitieuse, la nature et l’ampleur de la transformation de la gare risque fort de conduire à son effacement, comme le souligne la Commission du Vieux Paris…

Passerelle A : un nouveau projet pour la gare de la rue d’Avron
Il y a tout juste 2 ans, nous écrivions un article intitulé « Vers une renaissance de la gare de la rue d’Avron ». En effet, la gare avait été concernée par la 2ᵉ phase de l’appel à projets « À l’orée de la Petite Ceinture » lancé par SNCF Immobilier. À l’issue de cette procédure, deux sociétés, « Quai 36 » et « Constellations » avaient reçu la gestion du lieu pour une durée de 20 ans.
Le projet, nommé « Passerelle A » vise à aménager l’ancienne gare et ses abords, afin d’y mener différentes activités (spectacle vivant, création artistique, restauration et bar, coworking, événements festifs). Il vise la transformation complète de l’ancien bâtiment des voyageurs, la construction d’une extension et d’un bâtiment neuf au droit de la rue d’Avron.
Il prévoit aussi l’aménagement de la cour, la reconstruction de l’escalier extérieur, l’aménagement d’un ascenseur et la récupération du quai de la voie « intérieure ».

Le permis de construire (075 120 25 V0001), déposé le 6 janvier 2025, a été reçu un avis favorable (avec réserve) le 10 septembre 2025. À noter qu’un permis de démolir portant sur 2 structures au toit en tôle (une ancienne structure située le long du BV, dans la cour, l’autre entre le viaduc de la PC et l’immeuble du 117 rue d’Avron) avait été déposé le 13 mars 2024 et approuvé le 7 juin 2024.

Signée le 15 juin 2023, la convention d’occupation liant Quai 36 et SNCF Réseau court jusqu’au 14 juin 2043. Une redevance annuelle (12 000 € fixes + 6 % du résultat net après impôts) devra être versée par l’occupant.
Enfin, SNCF Réseau rappelle que le bâtiment se situe sur la ligne 955 000 du Réseau Ferré National, de La Rapée à Batignolles (Petite Ceinture de Paris), au niveau de PK 022+478 à PK 022+426. Par ailleurs, SNCF Immobilier rappelle explicitement que « le projet doit prendre en compte le principe de réversibilité de la Petite Ceinture1″.
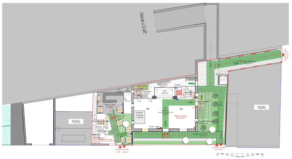
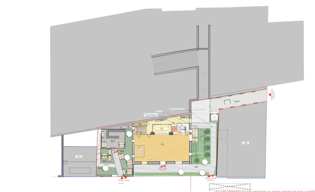
Nef, restaurant du quai, restaurant wagon, bar/salon de thé… un projet de (très) grande ampleur
Tel qu’accordé à la SAS Passerelle A, le permis de construire porte sur « la restructuration de l’ancienne gare d’Avron et la création d’un restaurant et d’un salon de thé avec accès pour les personnes à mobilité réduite, l’aménagement du terrain et des espaces libres, l’extension, la surélévation partielle et la modification d’aspect extérieur d’une construction à R+2 sur 1 niveau de sous-sol ».
Dans le détail, le projet est structuré en 4 espaces distincts : la nef, le bar/salon de thé, le restaurant du quai, le restaurant « Wagon ».
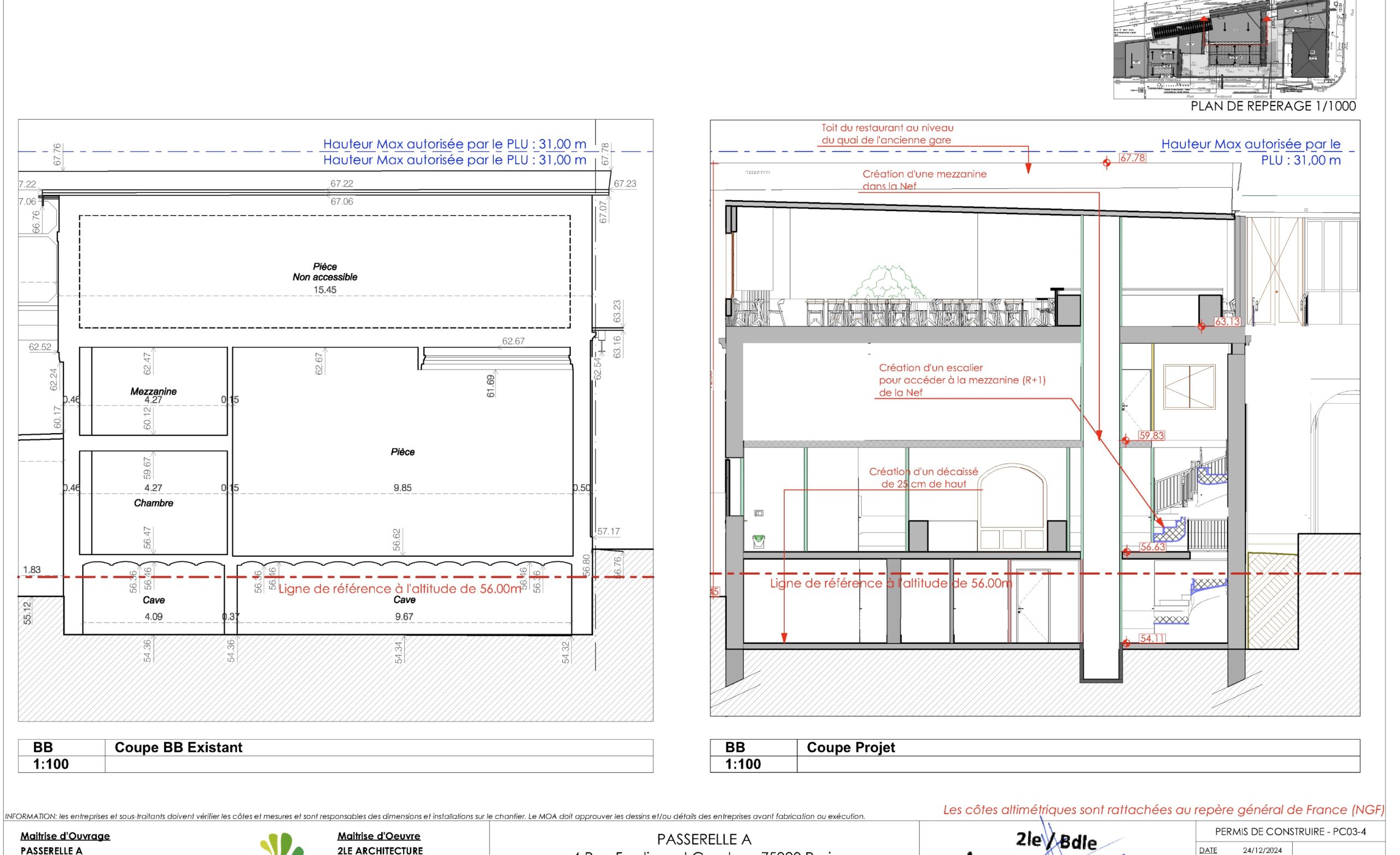
- L’ancien bâtiment des voyageurs (BV) devient la « Nef », avec un bar et les cuisines, avec une superficie de 98,91 m². Une mezzanine formera un espace privatisable pour des événements (31,86 m²), avec un fumoir annexe (7,68 m²)
- La petite structure devant l’ancien BV est remplacé par un conteneur bardé de bois accueillant un salon de thé (29,18 m²), avec une petite terrasse (30,85 m²) grâce à un escalier métallique
- Au niveau R+2, l’ancienne gare et le quai extérieur accueillent le Restaurant Quai (45,36 m²) et la Terrasse Quai (138,05 m²)
- Au niveau R+3, le Restaurant Wagon (25,78 m² accessibles au public) prendrait place dans une nouvelle construction.

Le nouveau bâtiment de 3 étages, nommé « restaurant Wagon », sera bâti sur la parcelle comprise entre le viaduc de la Petite Ceinture et l’ancien hôtel de la gare situé au 117 rue d’Avron. « L’architecture choisie est métallique avec de grandes baies, évoquant une architecture ferroviaire », note la Commission du Vieux Paris. Une extension permettra de relier cette nouvelle construction à la « Nef » situé dans l’ancien BV. Une cage d’ascenseur doit prendre place dans la cour.




L’accès se ferait par la cour pavée situé au 4 rue Ferdinand Gambon, mais aussi par « tunnel artistique » donnant accès à la rue d’Avron, en passant sous le nouveau bâtiment du « Restaurant Wagon ». Une rampe accessible PMR permettrait l’accès à la plateforme ferroviaire de la Petite Ceinture – avec un accès de secours vers le centre hospitalier des Diaconesses de Reuilly.

Enfin, des locaux techniques et des sanitaires seraient aménagés au sous-sol du BV, dans les anciennes caves de la gare. D’après les différents documents que nous avons pu consulter, la surface totale du projet s’élève à plus de 900 m².
| Bâtiment | Niveau | État | Usage principal | Surface (m2) |
| Nef | R+1 + sous-sol | Existant, inauguré en 1895 | Événements/spectacles | 531,1 |
| Bar / Salon de thé | R+0 | Neuf | Bar | 35 |
| Restaurant du quai | Un niveau en R+2 | Extension/ Surélévation | Restaurant | 183 |
| Restaurant Wagon | R+1 à R+3 | Neuf | Restaurant | 98,25 |
Retrouvez ci-dessous les plans des aménagements prévus par le projet Passerelle A, tels que présentés dans le permis de construire déposé le 6 janvier 2025 :








Un avis défavorable de la Commission du Vieux Paris
Lors de sa séance plénière du 11 juin 2025, la Commission du Vieux Paris a effectué plusieurs observations. Comme nous l’indiquions en 2023, le bâtiment n’est pas « abandonné » depuis 1934, mais occupé par M. Richard Marti-Vives, artiste peintre. Le bâti, la charpente et la couverture sont en très bon état. Cependant, « les baies en plein-cintre ont été partiellement obstruées, quand la grande salle a été découpée en volumes par des cloisons en parpaings ».

du tunnel conduisant aux autres voies, 2024 © DHAAP / Marc Lelièvre


« Le premier étage n’a pu être visité : il est condamné depuis plusieurs années pour éviter les occupations illégales, qui se sont multipliées ces dernières années. En outre, les graffitis et l’art urbain rendent aujourd’hui ce volume illisible. L’abri extérieur le long des voies a été victime d’un incendie et sa marquise en bois ne subsiste qu’à l’état de ruine. Pour autant, le mur du fond en briques et métal, visible depuis la rue Ferdinand Gambon, ne semble pas poser de question de stabilité. »


Au sujet du projet porté par Passerelle A, la Commission note que « l’ancienne gare sera amplement modifiée, car englobée dans de nouvelles constructions : d’une part, les anciens abris seraient reconstruits dans leur emprise, mais partiellement clos. [.…] Laissée à l’état quasiment de ruine, mais encore reconnaissable, l’ancienne gare de la Petite Ceinture semble matériellement disparaître, malgré sa protection ».


Car, rappelons-le, la gare de la rue d’Avron bénéficie d’une protection patrimoniale de la Ville de Paris au titre du PLU depuis 2006. Et, comme indiqué plus haut, la Petite Ceinture Rive Droite fait toujours partie du Réseau Ferré National, en tant que ligne n°955 000.
Au final, la Commission du Vieux Paris « s’oppose au traitement proposé pour cette construction modeste, mais emblématique du paysage de la Petite Ceinture. […] L’insertion du bâtiment dans une nouvelle enveloppe ne participe en aucune façon du respect ni de la mise en valeur de ce patrimoine protégé au titre du PLU bioclimatique ».
Le compte-rendu de cette séance peut être consulté dans ce document.
Quels aménagements pour la plateforme de la Petite Ceinture ferroviaire ?
Les différents documents que nous avons consultés ne font pas mention des aménagements qui doivent être réalisés sur la plateforme de la ligne. Cependant, le projet prévoit a priori la récupération de l’ancien escalier menant au quai « extérieur », aujourd’hui démoli.
En outre, la délibération 2025 DU 31 approuve la signature par la Ville de Paris et SNCF Réseau d’une nouvelle convention de superposition d’affectation (CSA) visant à la création d’un accès public à la Petite Ceinture au 117 bis rue d’Avron et d’une section ouverte au public. Elle s’appuie sur la CSA-Est signée en juin 2017.
Enfin, les différents visuels montrent une nouvelle fois une Petite Ceinture purement « décorative ». La voie intérieure serait recouverte par un platelage, tandis que la voie extérieure serait livrée à la végétation – sans réel souci quant à la réversibilité des aménagements…
Notre association restera donc particulièrement vigilante quant aux travaux qui concerneront l’ancienne gare de la rue d’Avron, ainsi que la plateforme de la ligne de chemin de fer.
- Dans son avis rendu en date du 9 septembre 2025, SNCF Immobilier précise que « le projet doit prendre en compte le principe de réversibilité de la Petite
Ceinture : en cas de besoin ferroviaire, toute installation se développant au droit du gabarit ferroviaire et s’avérant incompatible avec des circulations ferroviaires devra être modifiable, démontable ou mise en conformité par le pétitionnaire ».
Il indique également que « Les travaux envisagés ne devront pas porter atteinte à la bonne conservation de l’ouvrage d’art supportant la plateforme ferroviaire et ses installations, aussi bien en cours d’exécution des travaux, qu’ultérieurement ». ↩︎









